秀香貸店舗(1F)-
上佐野町 佐野一本松通り沿いの飲食店跡地のテナントです♪
室内外は現況有姿でのお引渡しとなりますので、入居者様の理想のテナントにリノベーションが可能です♪■Gメッセ群馬,ガトーフェスタハラダ高崎工場,サンピエール病院,倉賀野駅方面及び高崎駅方面にも行き来しやすい立地の飲食店跡地の貸店舗です!■保証会社加入要(初回分:賃料の1ヶ月分)■駐車場は敷地内無料となります(車種により4台駐車可能です)■本件は1階部分が対象となります(2階部分については別途相談要)
| 賃料 | (税込)15.0万円 | 所在地 | 高崎市上佐野町333-1 | ||
|---|---|---|---|---|---|
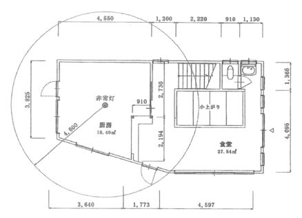
| 共益費 | 賃料に込み | 間取り | - | 面積 | 45.94㎡ |
| 礼/敷 | 1ヶ月/2ヶ月 | 駐車場 | 敷地内無料(車種により4台駐車可能) | 構造 | 木造・鉄骨造(混構造) |
| 物件種別 | 貸店舗 | 階層/階数 | 1階/2階建 | 築年月 | 昭和55年4月新築 |
| 方位 | 東 | 交通 | 上信電鉄「佐野わたし駅」より約800m(徒歩約11分) | 取引 | 仲介 |

条件・特徴・設備
| 契約条件 | 保証会社加入必須, 事務所可, 飲食可 | 特徴 | 角部屋 | 入居日 | 応相談 |
|---|---|---|---|---|---|
| 保険 | 各種保険 別途加入必須 | 契約期間 | 5年 | 更新料 | 新賃料の1ヶ月 |
| 仲介手数料 | 家賃の110%(税込) | 学校区 | 佐野小学校(約500m)・佐野中学校(約1.4km) | ||
| 設備 |
プロパンガス バス・トイレ - キッチン - 通信 - 収納 - セキュリティ - |
||||
地図・周辺環境
*印は必須



















































