高関町貸テナント-
高関町 2階建て貸テナント(事務所・店舗)です♪
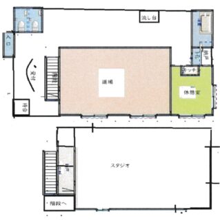
2階建貸テナント・建物面積約70坪♪敷地面積約141坪(仮換地)駐車場約7台可能・立て看板2本利用可能!環状線や高崎駒形線、高崎伊勢崎線からもアクセス良好!周辺商業施設多数あり■飲食業不可■【現況】1階:整体,道場・2階:貸スタジオ■火災保険加入必須■現況有姿でのお引渡しとなります■バス停「高関」まで徒歩約5分(約300m)■ファミリーマート高崎高関店まで徒歩約3分(約190m)■ダイソー高崎高関店まで徒歩約2分(約190m)
| 賃料 | (税込)22.0万円 | 所在地 | 高崎市高関町405-3 | ||
|---|---|---|---|---|---|
| 共益費 | 賃料に込み | 間取り | - | 面積 | 231.86㎡ |
| 礼/敷 | 1ヶ月/1ヶ月 | 駐車場 | 敷地内無料(車種により7台駐車可能) | 構造 | 軽量鉄骨造 |
| 物件種別 | 貸事務所 | 階層/階数 | 1-2階/2階建 | 築年月 | 1996年1月 |
| 方位 | 南 | 交通 | 湘南新宿ライン「高崎駅」まで約2.0km(車で約6分) | 取引 | 仲介 |

条件・特徴・設備
| 契約条件 | 保証会社加入必須 | 特徴 | 居抜き | 入居日 | 2026年4月以降(現状賃貸中) |
|---|---|---|---|---|---|
| 保険 | 各種保険 別途加入必須 | 契約期間 | 要相談 | 更新料 | 新賃料の1ヶ月 |
| 仲介手数料 | 家賃の110%(税込) | 学校区 | 城東小学校(約950m)・大類中学校(約650m) | ||
| 設備 |
エアコン, シャワー・給湯, B.T別室, 照明器具, 都市ガス バス・トイレ 温水洗浄便座 キッチン システムキッチン 通信 - 収納 収納スペース セキュリティ - |
||||
地図・周辺環境
*印は必須



















































