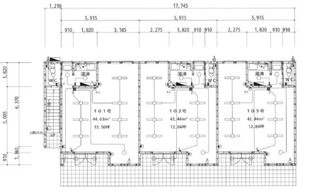
リフィール102号室
連取元町 トライアル伊勢崎近くのテナントです♪(102号室)
「メガセンタートライアル伊勢崎連取店」の目の前という立地の貸店舗・貸事務所です♪■エアコン1台設置済み■照明器具付き■現況有姿でのお引渡しとなります■各種飲食業及びペット系の業種は不可となります■駐車場が2台分ついております(3台目以降及び来客用の駐車場はございません)
| 賃料 | 7.5万円 | 所在地 | 伊勢崎市連取元町240番1 | ||
|---|---|---|---|---|---|
| 共益費 | 賃料に含む | 間取り | 1R/1K | 面積 | 42.44㎡ |
| 礼/敷 | 1ヶ月/1ヶ月 | 駐車場 | 2台分無料(来客用駐車場無し) | 構造 | 木造 |
| 物件種別 | 貸事務所 | 階層/階数 | 1階/2階建 | 築年月 | 2020年1月新築 |
| 方位 | 西 | 交通 | 東武伊勢崎線「新伊勢崎駅」まで約1.7km | 取引 | 代理 |

条件・特徴・設備
| 契約条件 | 保証会社加入必須, 事務所可 | 特徴 | スケルトン | 入居日 | 応相談 |
|---|---|---|---|---|---|
| 保険 | 店舗総合保険等 別途加入要 | 契約期間 | 3年 | 更新料 | 新賃料の1ヶ月 |
| 仲介手数料 | 家賃の110%(税込) | 学校区 | 宮郷第二小学校・宮郷中学校 | ||
| 設備 |
エアコン, 照明器具, プロパンガス バス・トイレ 温水洗浄便座 キッチン - 通信 - 収納 - セキュリティ - |
||||
地図・周辺環境
*印は必須



































