中古住宅 前橋市荒牧町
荒牧町 一条工務店群馬施工の中古住宅です♪
東側接道の敷地ですが、陽当たりの良いお住まいです♫■ヤオコーやセキチュー(関根町)まで車で約3分、JAファーマーズやマルエドラッグ(川原町)まで車で約3分、内科医や歯科医は車で3分圏内という立地にも係わらず、閑静な住宅地の中古住宅です♪■荒牧小学校まで徒歩約6分、小学校の東側に位置する「荒牧町公園」も徒歩約8分ですので、お散歩がお好きの方にもお勧めの住環境です♫■バス停「群馬大学荒牧」まで徒歩約5分です
| 価格 | 1,498万円 | 所在地 | 前橋市荒牧町1461番14 | ||||
|---|---|---|---|---|---|---|---|
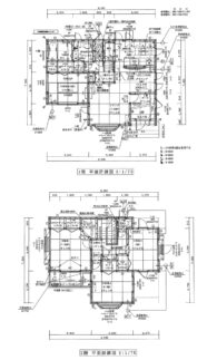
| 坪単価 | -万円/坪 | 物件種別 | 戸建 | 間取り | 4LDK | ||
| 権利 | 所有権 | 土地面積 | (公簿面積)163.24㎡ | 建ぺい率/容積率 | 60%/200% | ||
| 接道 | 東側 6.0m公道 | 建物面積 | (公簿面積)114.07㎡ | 私道負担 | 無し | ||
| セットバック | 不要 | 交通 | 上越線「群馬総社駅」まで約3.5km | 学校区 | 荒牧小学校(約200m)・南橘中学校(約1.8km) | ||
| 取引 | 一般媒介 | 都市計画 | 市街化区域 | 用途地域 | 1種中高 | ||
| 地目 | 宅地 | 地勢 | 平坦 | 現状 | 空家 | ||
| 引渡条件 | 現況引渡し | 国土法 | - | 引渡し | 相談 | ||

設備・備考
| 設備 | 電気, プロパンガス, 上水道, 下水道 | ||||
|---|---|---|---|---|---|
| 備考 | 平成16年5月新築■木造2屋建て(家屋番号:1461番14)■施工業者:(株)一条工務店群馬■既存建物は、室内外の設備も含めて現況有姿でのお引渡しとなります※売主様の契約不適合責任は免責にてお願い致します■室内の残置物は、売主負担にて撤去予定です■公簿面積取引(境界非明示取引))※測量,境界確定:買主様負担■上水道(メーター口径20mm)■公共下水区域(宅内引込済み)■集中LPG区域(供給先:河原実業(株)様) | ||||
地図・周辺環境
*印は必須

















