ウイング高崎 206号室
高崎市常盤町 室内リノベーション施工中のお部屋です♪(206号室)
室内リノベーション施工中・ペット飼育可(細則有)・高崎駅や北高崎駅まで徒歩約20分!南西向き陽当たり良好♪■スズラン高崎まで徒歩約10分(約770m)■スギドラッグ高崎並榎店まで徒歩約18分(約1.3km)
| 価格 | 1790万円 | 所在地 | 高崎市常盤町58-1 | ||||
|---|---|---|---|---|---|---|---|
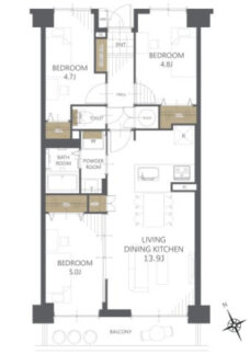
| 坪単価 | -万円/坪 | 物件種別 | マンション | 間取り | 3LDK | ||
| 権利 | 所有権 | 土地面積 | ―㎡ | 建ぺい率/容積率 | 60%/200% | ||
| 接道 | 東南 公道 | 建物面積 | (専有面積)59.79㎡ | 私道負担 | 無し | ||
| セットバック | 不要 | 交通 | JR高崎線「高崎駅」まで約1.6km | 学校区 | 中央小学校(約260m)・第一中学校(約970m) | ||
| 取引 | 媒介 | 都市計画 | 市街化区域 | 用途地域 | 1種住居 | ||
| 地目 | 宅地 | 地勢 | 平坦 | 現状 | リノベーション施工中 | ||
| 引渡条件 | リノベーション施工後 | 国土法 | - | 引渡し | 相談 | ||

設備・備考
| 設備 | 電気, 都市ガス, 上水道, 下水道 | ||||
|---|---|---|---|---|---|
| 備考 | 令和7年10月室内リノベーション完了予定(キッチン,浴室,洗面化粧台,トイレ新規交換・床材,クロス全室貼替等)■RC・SRC造地下1階付9階建て■平成元年9月新築■総戸数:86戸■管理費:月額8,700円■修繕積立金:月額6,160円■管理形態:全部委託■管理方式:日勤管理■管理会社:大京アステージ(株)■施工会社:井上工業(株)■ペット飼育:可(細則有)■駐車場:有(月額4,000~10,000円空き状況要確認) | ||||
地図・周辺環境
*印は必須

