ダイヤモンドスクエア前橋 903号室
南町 室内リノベーション施工のお部屋です♪(903号室)
室内リノベーション♪9階部屋で眺望良好!前橋駅まで徒歩約12分・スーパーやコンビニ近く買い物便利♪■クスリのアオキ南町店まで徒歩約2分(約130m) ■ジョイフーズ前橋南町店まで徒歩約3分(約190m)
| 価格 | 1990万円 | 所在地 | 前橋市南町1-19-27 | ||||
|---|---|---|---|---|---|---|---|
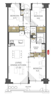
| 坪単価 | -万円/坪 | 物件種別 | マンション | 間取り | 3LDK | ||
| 権利 | 所有権 | 土地面積 | -㎡ | 建ぺい率/容積率 | 60%/200% | ||
| 接道 | 西側 公道,北側 公道 | 建物面積 | (専有面積)73.41㎡ | 私道負担 | 無し | ||
| セットバック | 不要 | 交通 | 両毛線「前橋駅」まで約1.1km | 学校区 | 桃井小学校(約1.3km)・第一中学校(約150m) | ||
| 取引 | 媒介 | 都市計画 | 市街化区域 | 用途地域 | 2種中高 | ||
| 地目 | 宅地 | 地勢 | 平坦 | 現状 | リノベーション施工中 | ||
| 引渡条件 | リノベーション施工後 | 国土法 | - | 引渡し | 相談 | ||

設備・備考
| 設備 | 電気, 都市ガス, 上水道, 下水道 | ||||
|---|---|---|---|---|---|
| 備考 | 2025年12月室内リノベーション完了予定(キッチン,洗面化粧台,ユニットバス,トイレ新品交換、食洗器取付、クロス全室張替え、床材張替え等)■RC・SRC造10階建■平成4年2月新築■総戸数:144戸■ペット不可■管理費:月額9,030円■修繕積立金:月額9,540円■管理形態:全部委託(日勤)■管理会社:日本ハウズイング㈱■施工会社:東レ建設㈱■駐車場:有・月額7,000円(空き要確認) | ||||
地図・周辺環境
*印は必須

























