中古住宅 伊香保町伊香保
伊香保町 「リノベーション済み」の中古住宅です♪
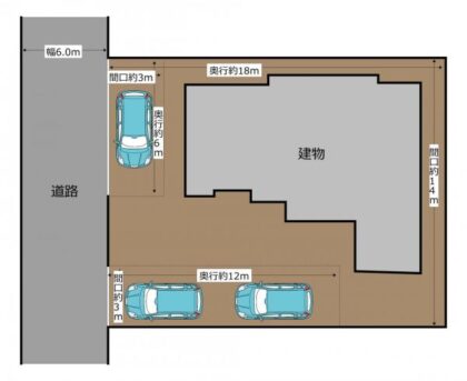
令和6年4月に水回り交換工事やクロス張替え工事を行っています。全室フロア室内クロス張替え、クリーニング済み、防蟻処理済みですので、即入居可能です♪■駐車場は、車種によりますが3台駐車可能です!■伊香保温泉石段街まで約2.7km(車で約6分)■渋川駅まで約9.3km(車で約17分)
| 価格 | 1,549万円 | 所在地 | 渋川市伊香保町伊香保668-29 | ||||
|---|---|---|---|---|---|---|---|
| 坪単価 | -万円/坪 | 物件種別 | 戸建 | 間取り | 6LDK | ||
| 権利 | 所有権 | 土地面積 | (公簿面積)265.39㎡ | 建ぺい率/容積率 | 50%/80% | ||
| 接道 | 西側 約6.00m 公道 | 建物面積 | (公簿面積)150.91㎡ | 私道負担 | 無し | ||
| セットバック | 不要 | 交通 | 上越線「渋川駅」まで約9.3km | 学校区 | 伊香保小学校(約1.6km)・伊香保中学校(約1.2km) | ||
| 取引 | 媒介 | 都市計画 | 非線引区域 | 用途地域 | 無指定 | ||
| 地目 | 宅地 | 地勢 | 平坦 | 現状 | 空家 | ||
| 引渡条件 | 現況引渡し | 国土法 | - | 引渡し | 即時 | ||

設備・備考
| 設備 | 電気, プロパンガス, 上水道, 下水道 | ||||
|---|---|---|---|---|---|
| 備考 | 現況有姿でのお引渡しとなります■1994年1月新築■木造2階建て■間取り:6LDK■令和6年4月に水回り交換工事やクロス張替え工事済 ■リフォーム内容(室内)室内清掃・防蟻工事・玄関鍵交換 ■シロアリ防除工事施工後5年間保証 ■中古住宅の3大リスクである、雨漏り、主要構造部分の欠陥や腐食、給排水管の漏水や故障を2年間保証 | ||||
地図・周辺環境
*印は必須



































































